Tre ambienti indipendenti integrati in 4 differenti proposte.
Dialogo diretto con la proprietà.
Proposta 1 - 210mq

Via Colombo 33b – 35-37 – Via XX Settembre 65.
Comprende l’intero lotto: locale commerciale C1 da 125 mq con retro carrabile da 71,5 mq dotato di soppalco di 30 mq e un locale vetrina da 15 mq.
- Prezzo: 350.000,00€
- Categoria catastale: C1
- 3 vetrine.
Proposta 2 - 196,5 mq

Via Colombo 35-37 – Via XX Settembre 65
Comprende il locale commerciale C1 da 125 mq con retro carrabile da 71,5 mq dotato di soppalco di 30 mq.
- Prezzo: 325.000,00€
- Categorie catastali: C1
- 2 vetrine.
Proposta 3 - 140 mq

Via Colombo 33b, 35, 37
Comprende locale commerciale C1 da 125 mq e locale vetrina da 15 mq.
- Prezzo: 245.000,00€
- Categoria catastale: C1
- 3 vetrine.
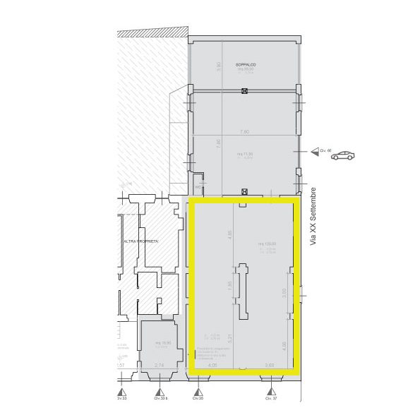
Proposta 4 - 125 mq

Via Colombo,35/37
Comprende il locale commerciale C1 da 125 mq.
- Prezzo: 225.000,00€
- Categoria catastale: C1
- 2 vetrine.
